九州酷游官网

GLK系列滤布转盘微滤器

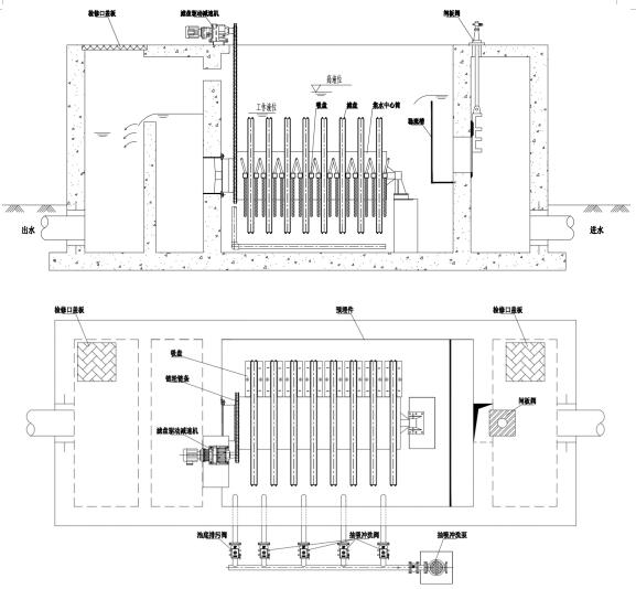
工作原理

    外进里出式转盘过滤器由一系列水平安装的旋转过滤盘组成,每个过滤转盘由以偶数的扇形过滤板组合而成,转盘上装有可方便拆卸的滤布,滤布材质为纤维,滤布的过滤孔径为10um。 
    纤维转盘滤池的运行状态包括:过滤、反冲洗、排泥状态。 
(1)过滤 
    污水重力流进入滤池,滤池中设有布水堰。滤布采用全淹没式,污水通过滤布外侧进入,过滤液通过中空管收集,重力流通过出水堰排出滤池。整个过程为连续式。 
(2)清洗 
    过滤中部分污泥吸附于滤布外侧,逐渐形成污泥层。随着滤布上污泥的积聚,滤布过滤阻力增加,滤池水位逐渐升高。通过压力传感器监测池内液位变化。当该池内液位到达清洗设定
(高水位)时,PLC即可启动反抽吸泵,开始清洗过程。清洗时,滤池可连续过滤。 
过滤期间,过滤转盘处于静态,有利于污泥的池底沉积。清洗期间,过滤转盘以1转/2分钟的速度旋转。抽吸泵负压抽吸滤布表面,吸除滤布上积聚的污泥颗粒,过滤转盘内的水自里向外被同时抽吸,并对滤布起反清洗作用。瞬时冲洗面积仅占全过滤转盘面积的1%左右。反冲洗过程为间歇。 
    清洗时,2个滤盘为一组,通过自动切换抽吸泵管道上的电动阀控制,纤维转盘滤池一个完整的清洗过程中各组的清洗交替进行,其间抽吸泵的工作是连续的。当进水水质突然之间恶化,池内液位迅速上升到反洗液位,清洗时同时启动所有反冲洗泵,可同时对几组过滤转盘进行反冲洗,直至反冲洗周期恢复正常。 
(3)排泥系统 
    纤维转盘滤池的过滤转盘下设有斗形池底,以利于池底污泥的收集。污泥池底沉积减少了滤布上的污泥量,可延长过滤时间,减少反洗水量。经过一设定的时间段,PLC启动排泥泵,通过池底穿孔排泥管将污泥回流至厂区排水系统。其中,排泥间隔时间及排泥历时可以调整。



设备组成
滤池:为方形池,根据用户需要可采用钢混凝土结构或碳钢箱体、不锈钢箱体。 
滤盘:纤维滤布及塑料骨架组成。 
反洗装置:清洗抽吸泵及带动滤盘转动的减速机和链轮传动机构。 
排泥装置:滤盘底部集泥便于污泥的沉淀及收集排放。 

设备优势 
1.处理效果好,出水水质稳定。进水SS介于≤40mg/L时,出水SS≤10mg/L,可承受SS在60-80mg/L的冲击负荷。 
2.占地面积小,运行及装机功率低。 
3.水头损失小,滤布前后水头损失不超过300mm。 
4.运行自动化。 
5.模块化设计,运行,维护简单,滤布更换快捷。 
技术特点 
1.我公司生产的纤维转盘滤池滤布采用特殊编制技术,抗冲击能力强,纤维不脱落。滤布强度高,湿态强度与干态强度基本相同。 
2.弹性好,伸长后几乎可以完全恢复。 
3.纤维表面光滑,污垢易脱落,耐腐蚀,不发霉。 
4.过滤精度高,微滤滤径5-20μm,可根据需要选择。

技术参数
一体式箱式能力性能指标:

名称GLK1000GLK1600GLK2000
处理流量15m³/h25m³/h40m³/h
滤布直径1000mm1600mm2000mm
滤盘数量2-8 盘2-10 盘2-10 盘
过滤面积1.7m²/单盘2.5m²/单盘4.5m²/单盘
滤速8-15m8-15m8-15m
进水 SS ≤40mg/L≤40mg/L≤40mg/L
出水 SS≤10mg/L≤10mg/L≤10mg/L
滤盘骨架材质增强工程塑料增强工程塑料增强工程塑料
滤布材质纤维滤布纤维滤布纤维滤布
集水中心筒材质不锈钢不锈钢不锈钢
滤池箱体材质碳钢、不锈钢碳钢、不锈钢碳钢、不锈钢
驱动功率0.37 kW0.37 kW0.37 kW
抽吸清洗泵功率2.2 kW2.2 kW2.2 kW
清洗流量25m³/h25m³/h25m³/h
清洗周期0-300min0-300min0-300min
清洗时间2min/两盘2min/两盘2min/两盘
水头损失250mm250mm300mm
过滤形式重力过滤重力过滤重力过滤
外形尺寸3550×1260×17504800×1800×25006000×2310×3000

*.对于更大的流量、不同水质的选型,使用方式及其他技术参数请咨询本公司,本公司有权对型号及参数如修改,不另行通知。

水泥池式技术参数:

名称GLK1000GLK1600GLK2000GLK2500GLK3000
处理流量15m³/h/单盘25m³/h/单盘40m³/h/单盘65m³/h/单盘100m³/h/单盘
滤盘直径1000mm1600mm2000mm2500mm3000mm
滤盘数量2-8 pcs2-10 pcs2-10 pcs2-12 pcs2-12 pcs
过滤面积1.7m²/单盘2.5m²/单盘4.5m²/单盘7.5m²/单盘12.0m²/单盘
滤速8-15m8-15m8-15m8-15m8-15m
进水 SS ≤40mg/L≤40mg/L≤40mg/L≤40mg/L≤40mg/L
出水 SS ≤10mg/L≤10mg/L≤10mg/L≤10mg/L≤10mg/L
滤盘骨架材质增强工程塑料增强工程塑料增强工程塑料增强工程塑料增强工程塑料
滤布材质纤维滤布纤维滤布纤维滤布纤维滤布纤维滤布
集水中心筒材质不锈钢不锈钢不锈钢不锈钢不锈钢
滤池箱体材质ConcreteConcreteConcreteConcreteConcrete
驱动功率0.37 kW0.37 kW0.55 kW0.55 kW0.55 kW
抽吸清洗泵功率2.2 kW3.0 kW3.0 kW4.0 kW4.0 kW
清洗流量25m³/h25m³/h25m³/h25m³/h25m³/h
清洗周期0-360min0-360min0-360min0-360min0-360min
清洗时间2min/两盘2min/两盘2min/两盘2min/两盘2min/两盘
水头损失250mm250mm300mm350mm350mm
过滤形式重力过滤重力过滤重力过滤重力过滤重力过滤
池体外形尺寸8300×2200×22008700×2800×22008750×3200×260010100×3800×270010200×4300×2800

*.对于更大的流量、不同水质的选型,使用方式及其他技术参数请咨询本公司,本公司有权对型号及参数如修改,不另行通知。


一体箱式滤布转盘微滤器

水泥池式滤布转盘微滤器


滤器的结构:
滤布转盘微滤器主要由;滤池箱体、滤盘组、滤盘抽吸反洗机构、排泥管机构、滤盘集水中心筒、滤盘清洗驱动机构、自动控制器、抽吸清洗泵、自控阀。
1、滤池箱体:不锈钢或碳钢焊接,箱体结构紧凑,重量轻,占地面积小。可调节水位落差的大小。
2、滤组盘:每个滤盘由3-12个独立的扇形滤盘分片组成一个圆滤盘,圆形滤盘中间空心的,两个上圆面覆盖滤布,滤盘两侧为过滤面,中间空心部为清水区。滤毛的深度储存俘获的粒子,减少正常运行时的水头损失。每个滤布滤盘至少有5.2m2、13m2的有效浸没过滤面积,且容易从装置上取出。
3、滤盘抽吸反洗机构 :由反洗吸盘、管道、反洗吸盘支架部件等组成。用于滤布的抽吸清洗。
4、排泥机构 :由排泥吸口、管道、排泥吸口支架部件等组成。用于清理滤池底部的污泥。
5、滤盘集水中心筒:污水经滤盘后通过集水中心筒流入出水箱。多个滤盘安装于集水中心筒上,清洗时驱动减速机带动中心筒及滤盘旋转。
6、滤盘驱动机构:由减速机、链轮、链条等组成,用来带动集水中心筒和滤盘组的旋转运动。
7、控制器:用于控制滤盘清洗、排泥的过程,使其运行自动化,并可就地设置反洗间隔时间、排泥间隔时间。
8、抽吸清洗泵、自控阀、管道组成滤盘清洗和排泥系统。

工艺运行方式
滤布转盘微滤器的运行状态包括:滤盘静态过滤过程、负压泵抽吸清洗过程、排泥过程。
(1)静态过滤过程:污水重力流进入滤池,滤池中设有进水挡板稳流。污水通过滤盘两侧滤布进行过滤,过滤液通过集水中空筒收集,重力流通过溢流槽排出滤池。整个过程为连续。
(2)根据液位差逐渐升高。通过液位控制器检测池内的水位高度。当该水位达到反洗设定值(高水位)时,控制器即可起动抽吸清洗泵和滤盘驱动减速机及自控阀,对滤盘进行抽吸反冲洗。反洗时,滤池连续过滤出水。
过滤期间,滤盘处于静态,污水进入稳流槽后在进入滤池,污水中较大悬浮物在滤池中沉淀,污物在滤池底部沉积。
滤盘清洗期间,滤盘以2转/分的速度旋转。抽吸冲洗泵通过吸盘负压抽吸滤布表面,吸除滤布上的积聚的污泥颗粒,滤盘内的水被同时抽吸,水自里向外对滤布进行反冲洗,并通清洗过管路排出反洗污水。抽洗面积仅占全滤盘面积的1%,反冲洗过程为间歇,通过液位和时间控制反清洗程序。
(3)排泥过程:滤布转盘过滤器的滤盘下设有斗形池底,有利于池底污泥的收集。污泥池底沉积减少了滤布上的污泥量,可延长过滤时间,减少反洗水量。

控制说明
1、系统设有自动和手动两种模式:
自动模式;操作人员根据污水情况设置好过滤时间和反洗时间,滤池即可按照控制器预先设定的程序(按时间、液位控制)进行工作;
手动方式仅在滤池调试或检修时使用,实现自控阀、抽吸反洗泵、滤盘驱动减速机的手动控制。
2、控制器并设有强制功能,强制功能是滤池在运行状态或停机状态多能完成一次自动清洗程序。
3、低液位保护功能;滤池内水位在低液位时,控制器是无法启动自动清洗程序和强制清洗程序。
4、高液位:当滤池水位到达设定上限位即自动启动清洗程序,完成清洗程序后恢复至过滤状态。
5、故障报警提示功能;自控阀的开、关不到位检测,对泵和减速机的过载检测,滤盘堵塞的报警功能。

产品应用
用于污水的深度处理,设置于常规活性污泥法、延时曝气法、SBR系统、氧化沟系统、滴滤池系统、氧化塘系统二沉池之后。
用于冷却循环水处理、废水的深度处理后回用。作为冷却水、循环水过滤后回用:进水水质SS≤80mg/L以下,出水水质SS≤20mg/L。
用于以下领域: ①去除总悬浮固体 ②结合投加药剂可去除磷 ③可去除重金属等。
用于过滤活性泥终沉池出水,设计水质:进水SS:40mg/L(最高可承受80-100mg/L),出水SS≤10mg/L,浊度≤2 NTU。

控制系统
采用工业单片PLC自动控制,中文或英文显示。可根据压差或定时控制过滤器自动清洗,并可手动、强制清洗。现场可设定过滤时间、清洗时间。运行信号、清洗信号、故障信号输出及485通讯接口。


产品推荐